潜水回流泵
发布时间: 2017-01-23 16:46
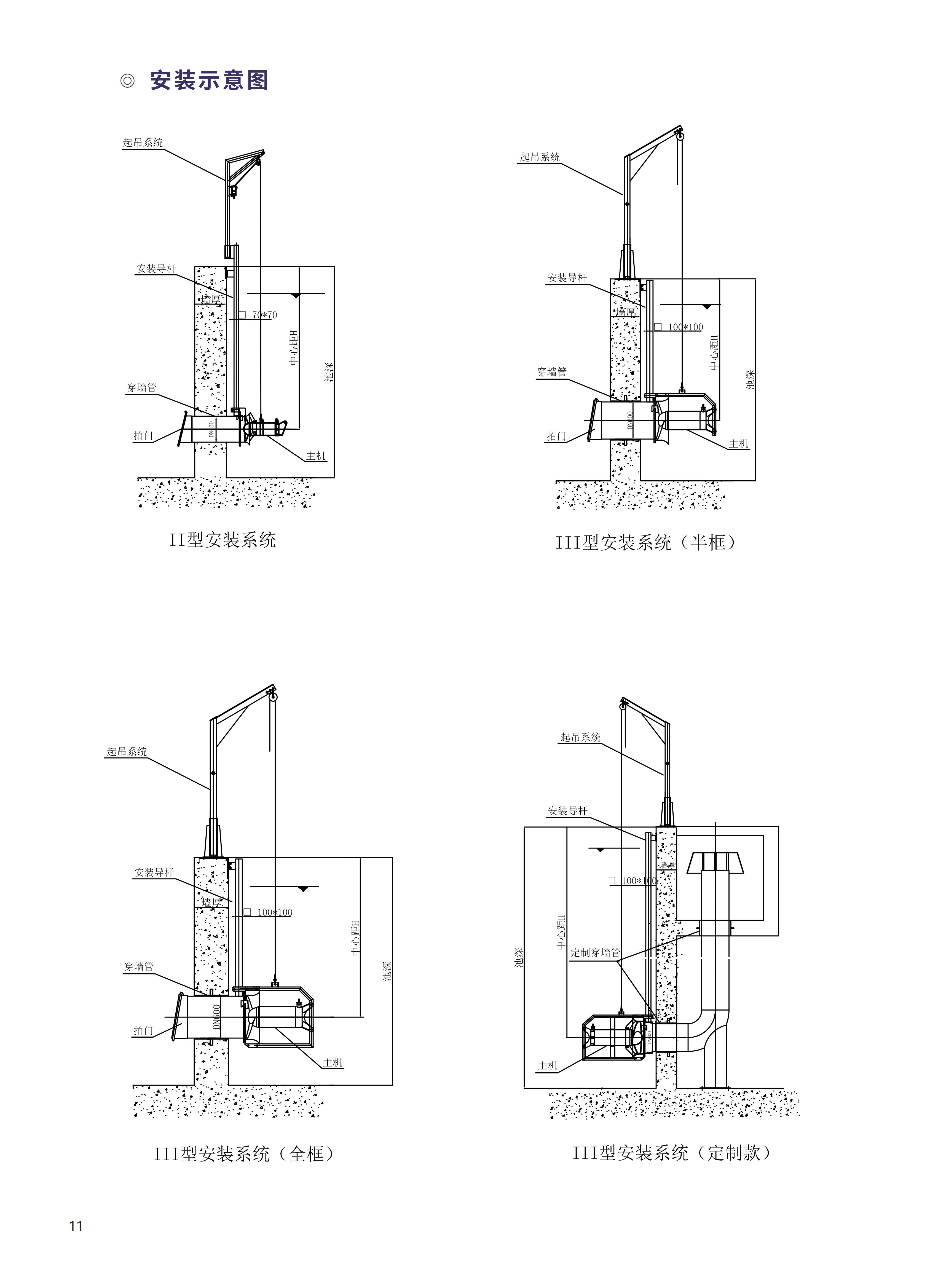
商品信息
上一个:
潜水推流器
下一个:
桨式搅拌机
服务热线:13851861511 微信同号
江苏艾文科技有限公司
网站首页
公司简介
产品中心
工程案例
人力资源
联系我们
产品详情
Product Details